
Explorer
While designing Thames City I plotted the mass distribution of a 150-metre building. 75% was structure. Only 5% was people. That number ended my career as typical structural engineer.
Hard systems don't move on ideas. They move on proof. Getting there sometimes means rebuilding every step of the chain from scratch.
The assumption
The question
The alternative
The proof
© Andrei JipaFunicular Floor System
ETH Zurich · PhD
A building's carbon footprint is an operational problem — insulate better, renewable engery.
What if half of the embodied carbon sits in the structure itself?
Compression-only floor slabs shaped by computational form-finding, digitally fabricated, and validated through nonlinear FEA and physical load testing. A full pipeline from geometry to production.
Installed at HiLo (NEST, Dübendorf). Rib-stiffened shells 2 cm thick, 70% less material than a flat slab. 80% less emission.
© University of StuttgartFunctional Gradient Concrete
ILEK · University of Stuttgart
Concrete is homogeneous — same mix everywhere, regardless of where the stress is.
What if the material could vary its properties within a single element, matching the actual stress field?
Use an automated system to seamlessly change the aggregates to match the stress field and to change the thermal insulation properties of the element — high-performance, dense mix under load, lightweight aggregate elsewhere. One cast, continuously graded.
1:1 panels fabricated and tested, confirming graded sections meet structural and thermal targets simultaneously.
© Dr. Pietro OdagliaGeopolymer Binder Jetting
ETH Zurich · Collaboration with Dr. Pietro Odaglia and DBT group
3D-printing structural elements requires Portland cement.
What if you could print with a zero-cement binder and still get structural performance?
Binder jetting with geopolymer instead of cement to produce funicular floor prototypes. The optimized structural geometry compensates for the reduced mechanical performances of the mix.
Prototypes printed, tested and exposed to the Venice Biennale of Architecture.
© SOMPerformance-Based Seismic Design
SOM · Professional practice
Seismic codes have all the answers.
What if you modelled the actual earthquake instead of the code's worst-case proxy?
Nonlinear dynamic analysis with recorded ground motions. Better performance where it matters, less material everywhere else.
Applied on SOM 500 Folsom tower in San Francisco. Reduced structural material while improving seismic performance beyond code requirements.

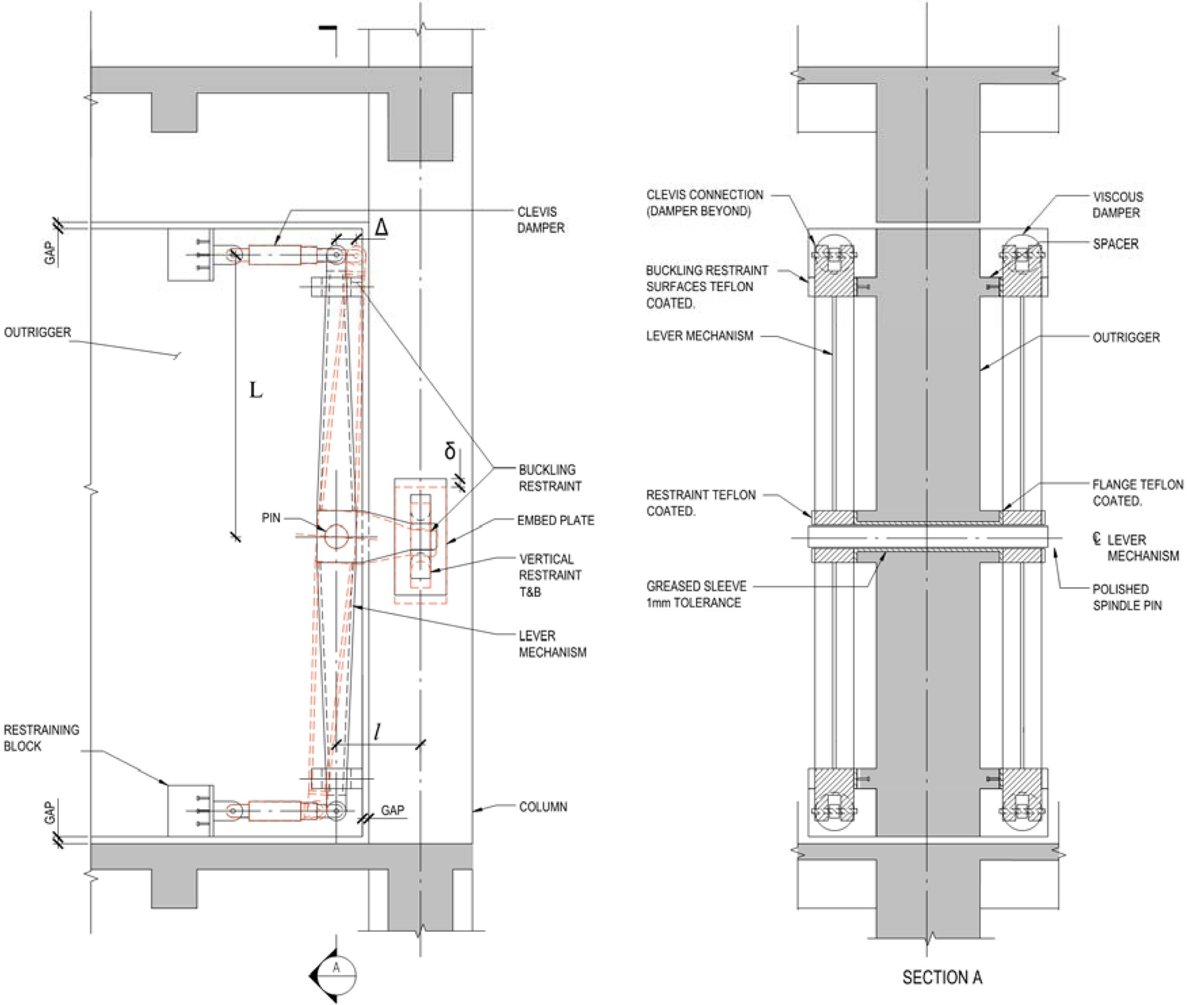
Viscous Dampers for High-Rise
SOM · Professional practice
Lateral resistance in tall buildings must come from stiff structural elements.
What if the building absorbed energy through movement instead of fighting it with mass?
Dissipating energy through controlled movement instead of resisting it. Less structural mass, better dynamic performance.
Research published in the CTBUH guidlines for outrigger design.
I look for the assumption, not just the problem.
Most engineering challenges have known solutions. The interesting ones are frozen in place by an assumption everyone stopped questioning. Four years of research taught me to find those — in construction, in processes, in any system where "why does it work this way" has been replaced by "that's just how it works."
I don't stop at the model.
The gap between an abstract system and a physical object is where most ideas disappear. Working on both sides of that boundary — computational thinking and physical making — changes what you design on each end. You never optimise the abstraction at the expense of where it has to land.
Contact with reality is the only test that counts.
Models and simulations are tools for thinking, not answers. Something works when it works under conditions you don't control, with consequences you can't walk back. That distinction shapes how I approach problems from the beginning.

Engineer
Designing landmark projects at Skidmore Owings and Merrill (SOM) — operating inside complex, high-stakes systems from concept to construction across three continents.

Founder
Co-founded VAULTED AG for impact at scale. Lab to market in under one year. Scaled in three countries in three years.
I'm looking for the next hard problem. If that sounds like yours — let's talk.
franaudo.com